Das Haus

Wir möchten Ihnen gerne ein Haus vorstellen, welches wir mit viel Liebe für sie Eingerichtet haben,
in der Hoffnung , auch Sie als Urlaubsgast gewinnen zu können.
Kinder sind bei uns gerne gesehen.
Angekommen, können Sie die Parkmöglichkeiten auf dem Hof nutzen. Über den Innenhof und
die Terrasse kommen Sie zum Eingang des Hauses.
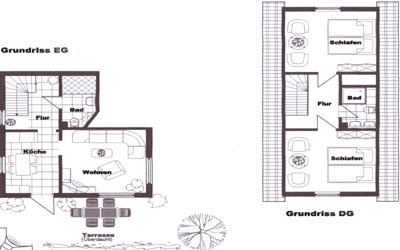
Der Grundriß des Ferienhauses zeigt, welche Räumlichkeiten Sie bewohnen können.
Im Erdgeschoß finden Sie die Küche (Kaffemaschiene,Wasserkocher,Toaster,Backofen)
und eine Dusche mit WC.
Im Obergeschoß befinden sich beide Schlafzimmer, eine Dusche mit WC und zwei
Waschbecken.
In der unteren Etage sorgt eine Ölheizung für Wärme, im Obergeschoß befinden sich
elektrische Heizkörper.
Auf der Terrasse mit Grill können Sie schöne Sommerabende genießen.
Von der Terrasse aus kommen Sie auf Ihre Liegewiese mit Liegen, Schaukel
und Sitzecke unter dem Walnußbaum.
Fahrräder und Kindersitze leihen wir Ihnen gegen ein Entgeld aus.

grundriss

Wohnzimmer Küche Bad Schlafzimmer1 Schlafzimmer2
Liegewiese mit Spielplatz Terasse